Telefon: (0 26 45) 9 71 61 46     E-Mail: info@schoss-immo.de

Idyllisch wohnen, ideal angebunden – Charmantes Reihenhaus mit Garten & Garage

Objekt-Nr:
AB-320
Immobilienart:
Reihenmittelhaus
Vermarktungsart:
Kauf
Adresse:
53547 Leubsdorf
Region:
Deutschland

Beschreibung im Detail

Dieses charmante Reihenmittelhaus in Leubsdorf, einer idyllischen Gemeinde bei Linz am Rhein, verbindet modernen Wohnkomfort mit gemütlichem Familienflair. Das Haus gehört zu einer 3er-Gruppe, wurde 2018 komplett renoviert und bietet auf ca. 121 m² Wohnfläche ein behagliches Zuhause für Paare oder Familien. Das rund 308 m² große Grundstück umfasst eine sonnige Terrasse und einen liebevoll angelegten Garten – ein perfekter Rückzugsort für entspannte Stunden im Freien, zum Spielen oder für gemütliche Abende mit Familie und Freunden.

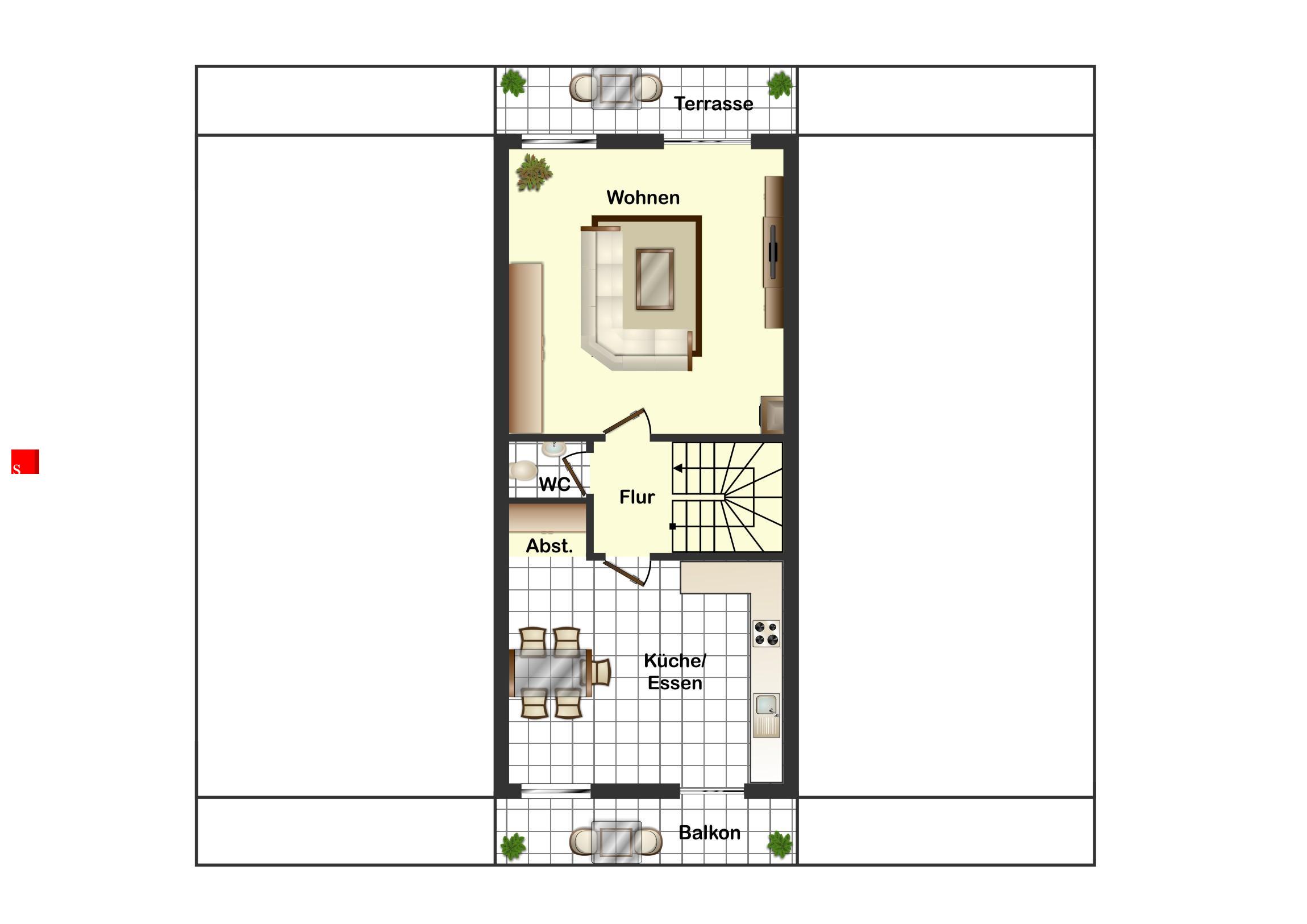
Das Haus erstreckt sich über drei Ebenen. Im Untergeschoss befinden sich ein separater Hauseingang mit Garderobe, ein praktisches Schlafzimmer, ein modernes Duschbad sowie zwei rückseitig gelegene Kellerräume, die zusätzlichen Stauraum bieten.
Das Erdgeschoss bildet das Herzstück des Hauses: ein großzügiges, helles Wohnzimmer mit direktem Zugang zur Terrasse und in den Garten, eine moderne Einbauküche mit hochwertigen Elektrogeräten namhafter Hersteller und direktem Zugang zum Balkon, ein Abstellraum sowie ein Gäste-WC.
Im Dachgeschoss erwarten Sie zwei gemütliche Schlafzimmer, ein weiterer Abstellraum sowie ein stilvolles Tageslichtbad mit bodentiefer Dusche und zwei Waschbecken. Für zusätzlichen Komfort sorgt die Einzelgarage mit elektrischem Tor direkt vor dem Haus.

Hochwertige Renovierung, durchdachte Raumaufteilung und der liebevoll angelegte Garten machen dieses Haus zu einem einladenden Zuhause, in dem Sie sich vom ersten Moment an wohlfühlen werden.

Im Dachgeschoss erwarten Sie zwei gemütliche Schlafzimmer, ein weiterer Abstellraum sowie ein stilvolles Tageslichtbad mit bodentiefer Dusche und zwei Waschbecken. Für zusätzlichen Komfort sorgt die Einzelgarage mit elektrischem Tor direkt vor dem Haus.

Hochwertige Renovierung, durchdachte Raumaufteilung und der liebevoll angelegte Garten machen dieses Haus zu einem einladenden Zuhause, in dem Sie sich vom ersten Moment an wohlfühlen werden.

Beschreibung der Lage

Die Immobilie befindet sich in einer familienfreundlichen Lage in Leubsdorf.
Kindergarten (gebührenfrei) und Grundschule (Betreuung zurzeit bis 17 Uhr) sind fußläufig erreichbar. Weiterführende Schulen finden Sie in Linz/Rhein, Bad Honnef oder Neuwied. Die nächstgelegenen Bus- und Bahnanbindungen finden Sie in Leubsdorf und Linz/Rhein.
Die Stadt Linz/Rhein liegt am Mittelrhein zwischen Bonn und Koblenz. Charakteristisch für diese Stadt sind die vielen farbenfrohen Fachwerkhäuser mit ihren Gässchen.
Linz hat Ärzte, Fachärzte, Apotheken, ein Krankenhaus, ein Freibad, ein Stadion, Kindergärten, eine Grundschule, eine Realschule Plus, ein Gymnasium, eine Hauswirtschaftsschule, gute Einkaufsmöglichkeiten sowie eine gute Bus- und Bahnanbindung.
Entfernungen: Köln ca. 55 km, Bonn ca. 27 km, bis zur A3 Köln-Frankfurt ca. 12 km. Die andere Rheinseite ist mit der Auto-Schnellfähre erreichbar.

Beschreibung der Ausstattung

Highlights auf einen Blick:
- Reihenmittelhaus in ruhiger Lage
- Wohnfläche ca. 121 m² auf 3 Ebenen
- Grundstück ca. 308 m² mit Terrasse, Balkon und Garten
- Teilunterkellerung
- 4 Zimmer + Küche, 2 Bäder, Gäste-WC
- Moderne Einbauküche mit Markengeräten
- Einzelgarage mit elektrischem Tor
- Renoviert 2018

Details zur Provision

Mit der Anfrage bei und durch Inanspruchnahme der Dienstleistung von SCHOSS Immobilien (Inhaberin: Malaley Schoss), wird ein Maklervertrag geschlossen. Sofern es durch die Tätigkeit von SCHOSS Immobilien zu einem wirksamen Hauptvertrag mit der Eigentümerseite kommt, hat der Interessent bei Abschluss eines KAUFVERTRAGS die ortsübliche Provision/Maklercourtage in Höhe von 3,57 % (inkl. MwSt.) des Kaufpreises an SCHOSS Immobilien gegen Rechnung zu zahlen.

Weitere Informationen

HAFTUNG: Wir weisen darauf hin, dass die von uns weitergegebenen Objektinformationen, Unterlagen, Pläne etc. vom Verkäufer bzw. Vermieter stammen. Eine Haftung für die Richtigkeit oder Vollständigkeit der Angaben übernehmen wir daher nicht. Es obliegt daher unseren Kunden, die darin enthaltenen Objektinformationen und Angaben auf ihre Richtigkeit hin zu überprüfen. Alle Immobilienangebote sind freibleibend und vorbehaltlich Irrtümer, Zwischenverkauf- und Vermietung oder sonstiger Zwischenverwertung.

Allgemeine Geschäftsbedingungen

AGB - ALLGEMEINE GESCHÄFTSBEDINGUNGEN

SCHOSS Immobilien

Inhaberin: Malaley Schoss

§ 1 Provisionsanspruch

Mit den Angeboten auf der Internetseite SCHOSS Immobilien (Inhaberin: Malaley Schoss) - nachfolgend „Makler“ genannt - wird das Objekt und zugleich die Dienstleistung des Maklers angeboten, die in der Vermittlung/dem Nachweis von Gelegenheiten zum Vertragsabschluss über dieses Objekt besteht. Der Provisionsanspruch entsteht, sobald aufgrund des Nachweises bzw. der Vermittlung ein Vertrag bezüglich des vom Makler benannten Objektes zustande gekommen ist.

Der Provisionssatz ist abhängig von der speziellen Art des Rechtsgeschäfts und als Basissatz inklusive der jeweils gültigen gesetzlichen Mehrwertsteuer (zur Zeit 19 %) zu verstehen:
bei Kaufverträgen oder wirtschaftlich ähnlichen Geschäften beträgt die Käuferprovision 3,57 % (inkl. Mehrwertsteuer) des Kaufpreises
bei Vermietung, Verpachtung oder wirtschaftlich ähnlichen Geschäften beträgt die Vermieterprovision zwei Monatsmieten.
bei Vermittlung von Haus- und Grundbesitz beträgt die Käuferprovision 3,57 % (inkl. Mehrwertsteuer) des Kaufpreises

Die vorstehenden Provisionssätze sind mangels abweichender Vereinbarung vom Kunden an den Makler zu zahlen. Sie gelten, soweit in dem jeweiligen Angebot nicht ausdrücklich eine andere Provision ausgewiesen ist.

§ 2 Fälligkeit der Provision

Die angegebene Provision wird erst fällig, wenn ein konkreter Nachweis über die Möglichkeit eines Vertragsschlusses, bzw. ein Vertrag selbst über das angebotene Objekt erbracht worden ist oder zustande kommt.
Provisionsanspruch entsteht auch dann, wenn aus wirtschaftlichen, rechtlichen oder sonstigen Erwägungen neben dem angebotenen Vertrag oder statt eines solchen ein anderer zustande kommt (z.B. Abschluss eines Kauf- oder Pachtvertrages, Abschluss eines Lizenz- oder Kooperationsvertrages anstelle eines Mietvertrages).
Bei Zahlungsverzug der Provision oder eines Aufwendungsersatzes sind vom Kunden Verzugszinsen in Höhe von 5 % über dem jeweiligen Basiszinssatz, mindestens jedoch 6 % zu zahlen. Dem Kunden bleibt der Nachweis vorbehalten, dass ein Schaden nicht oder nicht in dieser Höhe entstanden ist.

§ 3 Doppeltätigkeit

Der Makler darf auch beim Immobilienverkauf für den anderen Vertragsteil provisionspflichtig tätig werden.

§ 4 Weitergabeverbot

Sämtliche Informationen einschließlich der Objektnachweise des Maklers sind ausschließlich für den Kunden bestimmt. Dem Kunden ist es ausdrücklich untersagt, die Objektnachweise und -informationen ohne ausdrückliche Zustimmung des Maklers, die zuvor schriftlich eingeholt werden muss, an Dritte weiterzugeben. Verstößt der Kunde gegen diese Verpflichtung und schließt der Dritte oder andere Personen, an die der Dritte seinerseits die Informationen weitergegeben hat, den Hauptvertrag ab, so ist der Kunde verpflichtet, dem Makler die mit ihm vereinbarte Provision zuzüglich Mehrwertsteuer zu entrichten.

§ 5 Kenntnis von Angeboten

Ist dem Kunden ein Angebot bereits bekannt, hat er dies unverzüglich, spätestens aber innerhalb 7 Tage nach Erhalt, schriftlich unter Angabe der Quelle anzuzeigen. Verstöße gegen diese Verpflichtung begründen einen Schadensersatzanspruch des Maklers.

§ 6 Informationspflicht

Der Kunde ist verpflichtet, den Makler unverzüglich schriftlich zu informieren, falls er eine vermittelte und/oder nachgewiesene Gelegenheit zum Vertragsabschluss nicht wahrnehmen möchte.

§ 7 Abschluss des Hauptvertrages

Der Kunde ist verpflichtet, den Makler unverzüglich schriftlich über den Abschluss eines Hauptvertrages zu informieren und eine Kopie des Vertrages zu übersenden.

§ 8 Informationsgrundlagen und Prüfungsumfang

8.1 Die auf dem Portal zur Verfügung gestellten Informationen über die einzelnen Immobilien und deren Anbieter stammen ausschließlich von den jeweiligen Anbietern oder deren Auftraggebern, es sei denn, die jeweilige Information enthält den ausdrücklichen Hinweis auf einen anderen Ursprung.

8.2 Ziel des Informationsangebotes auf dem Portal ist es, die Nutzer über die Immobilienangebote von SCHOSS Immobilien (Inhaberin: Malaley Schoss) zu informieren und den Kontakt zum jeweiligen Anbieter zu ermöglichen. Ziel ist es dagegen nicht, die Richtigkeit der Angaben der Anbieter bzw. deren Auftraggeber, insbesondere der Verkäufer oder Vermieter zu überprüfen. Soweit daher nicht ausdrücklich etwas anderes angegeben ist, hat der Makler die Angaben zu den einzelnen Objekten nicht überprüft, sie stammen ausschließlich von den Anbietern.

8.3 Die darüber hinaus angebotenen Informationen zum Immobilienbereich allgemein stammen teilweise aus anerkannten Veröffentlichungen, Expertenmeinungen, Branchenstandards usw. Soweit der Ursprung oder der Autor der jeweiligen Information angegeben ist, ist dieser für den Inhalt verantwortlich. Der Makler macht sich diese Inhalte nicht zu eigen.

8.4. Der Makler bietet somit eine Plattform für die Informationseinstellung der SCHOSS Immobilien (Inhaberin: Malaley Schoss). Soweit nicht ausdrücklich anders gekennzeichnet handelt es sich nicht um eigene Inhalte. Der Makler macht sich diese fremden Inhalte nicht zu eigen.

§ 9 Haftung

9.1 Der Makler übernimmt daher keine Gewähr für die inhaltliche Richtigkeit, Vollständigkeit und Aktualität der erhaltenen Objektangaben, sowie für sonstige Informationen Dritter, die als solche kenntlich gemacht sind. Eine Haftung des Maklers im Zusammenhang mit dem Inhalt solcher Informationen ist ausgeschlossen.

9.2 Die übrigen Inhalte dieser Webseiten werden sorgfältig erarbeitet und in regelmäßigen Abständen aktualisiert. Gleichwohl können Fehler (z.B. technische Störungen, falsche Wiedergabe, Verfälschungen durch unbefugte Dritte usw.) auftreten. Der Makler übernimmt deshalb auch im übrigen keine Gewähr für die Richtigkeit, Vollständigkeit und Aktualität der auf diesen Seiten befindlichen Informationen.

9.3 Eine Haftung aus unterlassener oder fehlerhafter Beratung bzw. Aufklärung ist ausgeschlossen.

§ 10 Optionale Mietausfallvereinbarung

Der Makler kann vor Beginn, eines von Ihm vermittelten Mietverhältnisses, dem Vermieter schriftlich eine Mietausfallvereinbarung zur Annahme anbieten. Die Abgabe eines solchen schriftlichen Angebots, liegt ganz im Ermessen des Maklers. Mündliche Abreden sind unwirksam.

§ 11 Sonstiges

Alle auf unserer Internetseite befindlichen Fotos und Texte dürfen nur mit unserer schriftlichen Zustimmung verwendet , kopiert oder vervielfältigt werden.

§ 12 Schlussbestimmungen

12.1 Sollte eine oder mehrere der vorstehenden Bestimmungen ungültig sein, so soll die Wirksamkeit der übrigen Bestimmungen hiervon nicht berührt werden. Dies gilt auch, wenn innerhalb einer Regelung ein Teil unwirksam, ein anderer Teil aber wirksam ist. Die jeweils unwirksame Bestimmung soll von den Parteien durch eine Regelung ersetzt werden, die den wirtschaftlichen Interessen der Vertragsparteien am nächsten kommt und die den übrigen vertraglichen Vereinbarungen nicht zuwider läuft.

12.2 Ausschließlicher Gerichtsstand – auch für Scheck- und Wechselstreitigkeiten – ist im kaufmännischen Verkehr der Sitz der Maklerin. Sofern ein Vertragspartner keinen allgemeinen Gerichtsstand im Inland hat, gilt als Gerichtsstand der Sitz des Maklers. Der Makler ist jedoch berechtigt, Klagen und sonstige gerichtliche Verfahren auch am allgemeinen Gerichtsstand des Vertragspartners anhängig zu machen.

12.3 Es gilt das Recht der Bundesrepublik Deutschland.

Ende AGB - ALLGEMEINE GESCHÄFTSBEDINGUNGEN

Im Falle eines zustande kommenden Vertrages haben Verbraucher das folgende Widerrufsrecht:

WIDERRUFSBELEHRUNG

WIDERRUFSRECHT FÜR VERBRAUCHER

Sie haben das Recht, binnen vierzehn Tagen ohne Angabe von Gründen diesen Vertrag zu widerrufen. Die Widerrufsfrist beträgt vierzehn Tage ab dem Tag des Vertragsabschlusses.

Um Ihr Widerrufsrecht auszuüben, müssen Sie uns [SCHOSS Immobilien, Michaelstr. 38, 53560 Vettelschoß, Fax-Nr.: 02645 9716431, Tel-Nr.: 02645 9716146, ms@schoss-immo.de]
mittels einer eindeutigen Erklärung (z.B. ein mit der Post versandter Brief, Telefax oder E-Mail) über Ihren Entschluss, diesen Vertrag zu widerrufen, informieren.

Sie können dafür das untenstehende Muster-Widerrufsformular verwenden, das jedoch nicht vorgeschrieben ist.

Zur Wahrung der Widerrufsfrist reicht es aus, dass Sie die Mitteilung über die Ausübung des Widerrufsrechts vor Ablaufder Widerrufsfrist absenden.

MUSTER-WIDERRUFSFORMULAR

An
SCHOSS Immobilien
Michaelstr. 38
53560 Vettelschoß
Fax-Nr.: 02645 9716431
ms@schoss-immo.de

Hiermit widerrufe(n) ich/wir(*) den von uns(*) abgeschlossenen Vertrag über den Kauf der folgenden Waren(*)/ die Erbringung der folgenden Dienstleistungen(*)

Bestellt am (*) / erhalten am (*):
Name des/der Verbraucher(s):
Anschrift des/der Verbraucher(s):
Unterschrift des/der Verbraucher(s) (nur bei Mitteilung auf Papier)
Datum:
(*) Unzutreffendes streichen

FOLGEN DES WIDERRUFS

Wenn Sie diesen Vertrag widerrufen, haben wir Ihnen alle Zahlungen, die wir von Ihnen erhalten haben, einschließlich der Lieferkosten (mit Ausnahme der zusätzlichen Kosten, die sich daraus ergeben, dass Sie eine andere Art der Lieferung als die von uns angebotene, günstigste Standardlieferung gewählt haben), unverzüglich und spätestens binnen vierzehn Tagen ab dem Tag zurückzuzahlen, an dem die Mitteilung über Ihren Widerruf dieses Vertrags bei uns eingegangen ist. Für diese Rückzahlung verwenden wir dasselbe Zahlungsmittel, das Sie bei der ursprünglichen Transaktion eingesetzt haben, es sei denn, mit Ihnen wurde ausdrücklich etwas anderes vereinbart; in keinem Fall werden Ihnen wegen dieser Rückzahlung Entgelte berechnet.

Haben Sie verlangt, dass die Dienstleistungen während der Widerrufsfrist beginnen soll, so haben Sie uns einen angemessenen Betrag zu zahlen, der dem Anteil der bis zu dem Zeitpunkt, zu dem Sie uns von der Ausübung des Widerrufsrechts hinsichtlich dieses Vertrags unterrichten, bereits erbrachten Dienstleistungen im Vergleich zum Gesamtumfang der im Vertrag vorgesehenen Dienstleistung entspricht.

HINWEIS ZUM VORZEITIGEN ERLÖSCHEN DES WIDERRUFSRECHTS

Ihr Widerrufsrecht erlischt bei einem Vertrag zur Erbringung von Dienstleistungen vorzeitig, wenn wir die Dienstleistung
vollständig erbracht haben und mit der Ausführung der Dienstleistung erst begonnen haben, nachdem Sie dazu Ihre
ausdrückliche Zustimmung gegeben haben und gleichzeitig Ihre Kenntnis davon bestätigt haben, dass Sie Ihr Widerrufsrecht
bei vollständiger Vertragserfüllung durch uns verlieren.

Ende der Widerrufsbelehrung

Objektdetails

Preise  
Kaufpreis320.000 EUR
Courtage / Provision3,57 % des Kaufpreises inkl. MwSt.
Flächen  
Wohnflächeca. 121 m²
Zimmerzahl4
Anzahl Badezimmer2
Anzahl separater WC's1
Anzahl Balkons1
Grundstücksflächeca. 308 m²
Ausstattung  
HeizungsartZentralheizung
BefeuerungGas
BodenbelagFliesen
Bauart des HausesMassivhaus
KücheEinbauküche
Badezimmermit Badewanne, mit Dusche
Kellerja
unterkellertteilweise
Garten /-nutzungja
Balkon / Terrasseja
Verglasungdoppelt verglast
FensterKunststoff
Rollladenja
Rollladen (Art)Kunststoff
Zustandsangaben  
Baujahr1982
Energieausweis  
Energieausweis vorhandenja
EnergieeffizienzklasseC
erstellt am09.06.2018
gültig bis08.06.2028
Art des Energieausweisesnach Verbrauch
Verbrauchskennwert insgesamtca. 94,4 kWh/(m²a)
Verbrauch inkl. Warmwasserja